Tiêu chuẩn kích thước cổng trại trong các hoạt động hội trại
Cổng trại không chỉ là điểm nhấn mà còn ảnh hưởng trực tiếp đến độ an toàn và thẩm mỹ của hội trại. Việc xác định chuẩn kích thước ngay từ đầu giúp tiết kiệm thời gian, chi phí, đồng thời đảm bảo ổn định trong suốt sự kiện. Cùng Nghiện Cắm Trại khám phá bí quyết thiết kế cổng trại hài hòa và bền vững qua bài viết sau!
Vì sao cần xác định chuẩn kích thước cổng trại?
Xây dựng cổng trại đúng kích thước không chỉ đem lại tính thẩm mỹ mà còn đảm bảo kết cấu vững chắc, tránh rủi ro đổ ngã. Kích thước hợp lý góp phần tiết kiệm vật tư, đồng thời tạo sự cân đối và thu hút.
1. Tăng tính an toàn
Cổng trại cần chịu lực tốt trước sự tác động của thời tiết. Tỷ lệ cân đối giữa chiều cao và chân trụ giúp giữ vững kết cấu, giảm nguy cơ nghiêng lệch.
2. Đảm bảo thẩm mỹ
Thiết kế đúng kích thước giúp những chi tiết như cờ, biển tên hay trang trí nằm hài hòa, tạo điểm nhấn ấn tượng mà không kém phần gọn gàng.
3. Tối ưu chi phí
Xác định kích thước trước giúp bảo đảm số lượng vật liệu vừa đủ, tránh lãng phí và tiết kiệm thời gian dựng trại.
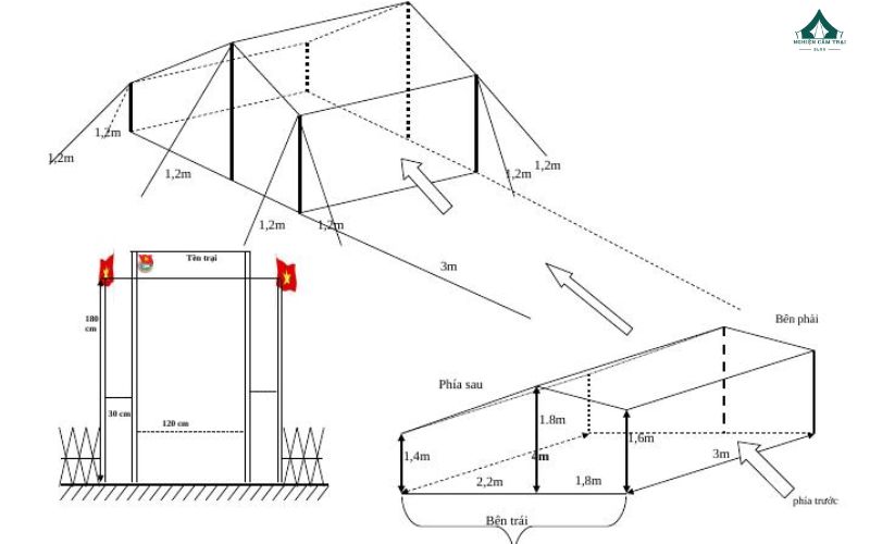
Kích thước phổ biến của cổng trại
1. Chiều cao
- Lối đi chính: từ 2,2m - 2,5m đảm bảo thông thoáng.
- Tổng chiều cao: khoảng 3m - 5m, tùy quy mô.
2. Chiều rộng
- Phần lối đi: từ 2m - 3m, đủ chỗ di chuyển.
- Khu vực trang trí: mở rộng thêm 0,5m - 1,5m mỗi bên.
3. Độ sâu chân trụ
- Chân móng: cố định 40cm - 60cm để đảm bảo vững chắc.
- Khoảng cách: đặt cân đối tránh lệch trọng tâm.
Cách tính tỷ lệ đẹp và an toàn
1. Tỷ lệ chiều cao và chiều rộng
Áp dụng nguyên tắc 1:1.5 hoặc 1:2, ví dụ, lối đi 2m, tổng chiều cao từ 3m đến 4m. Đảm bảo trọng tâm ở 1/3 chiều cao từ mặt đất để tăng độ vững chãi.
2. Phân bố khung và trang trí
Diện tích trang trí không vượt quá 40% tổng bề mặt. Đặt chi tiết nặng tại trung tâm, tránh gắn trang trí lớn ở rìa hoặc chóp để không lệch trọng tâm.
5 Lưu ý quan trọng khi dựng cổng trại
- Tuân thủ quy định: Đảm bảo kích thước phù hợp yêu cầu từ ban tổ chức.
- Chọn vật liệu hợp lý: Tre, gỗ, hoặc sắt mỗi loại tương ứng quy mô riêng.
- Đối phó thời tiết: Gia cố chân trụ ở khu vực nhiều gió.
- Đảm bảo giao thông: Cổng đủ rộng cho người và đạo cụ di chuyển.
- Ưu tiên an toàn: Kiểm tra độ chắc chắn của khung và mối nối.
Bằng cách chú trọng kích thước, bạn vừa đảm bảo an toàn, vừa tạo nên cổng trại đẹp mắt, gây ấn tượng tốt trong hội trại. Khám phá thêm các mẹo thiết kế tại Nghiện Cắm Trại để có một trải nghiệm dựng trại hoàn hảo!
Xem đầy đủ tại: https://nghiencamtrai.com/kich-thuoc-cong-trai/

Nhận xét
Đăng nhận xét